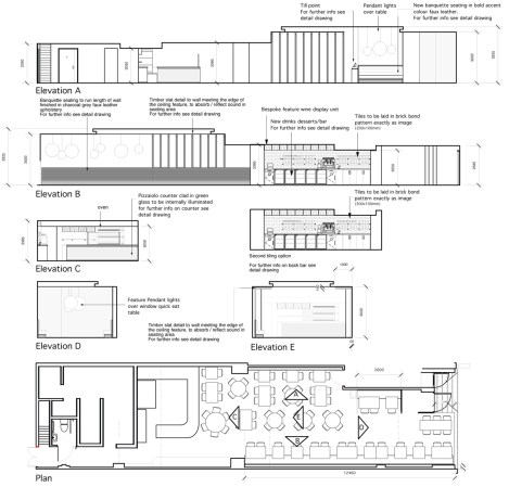
Pizza Express // Wimbledon + Weybridge January 14, 2010 · by emmajones84 · in Interiors, Professional Work. · When working on the refurbishment designs for the Pizza Express restaurant in Wimbledon and Weybridge we created concept sketches and CAD drawings. The client wanted the restaurants to retain a rustic ambience but with an updated modern feel. //Designed for Felt Branding Share this: Share on X (Opens in new window) X Share on Facebook (Opens in new window) Facebook Like Loading... Related